À propos de ce bien
Localisation
Construction
Surface habitable
Séjour
Chambres
Salle(s) d’eau
WC
Chauffage
Honoraires
Description
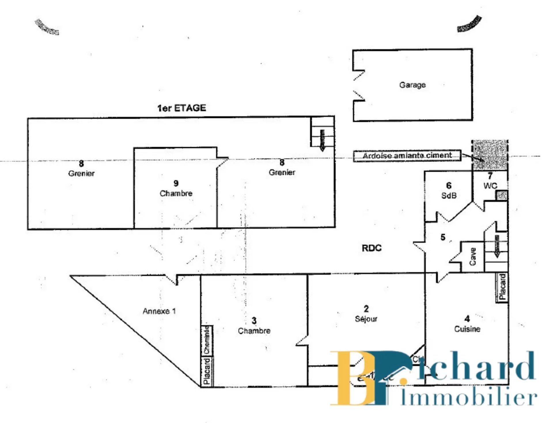
Située dans la commune de Monceau-lès-Leups (village avec école primaire), maison en pierre de 60 m² au sol offrant un beau potentiel pour les amateurs de rénovation.
Cette maison sur deux niveaux comprend au rez-de-chaussée: une entrée desservant une salle à manger, une cuisine, une chambre, une salle de bains et un sanitaire.
A l’étage, une chambre ainsi qu’un grenier aménageable, offrant de belles possibilités d’agrandissement.
En plus, la maison comprend une cave, un garage et un jardin de 14a 35ca pour profiter d’un extérieur agréable.
Idéal pour les passionnés de travaux souhaitant donner une seconde vie à ce bien plein de charme !
Les informations sur les risques auxquels ce bien est exposé sont disponibles sur le site Géorisques : www.georisques.gouv.fr
Diagnostics de Performance Energétique


B PICHARD IMMOBILIER
Agence immobilière à Laon
03 60 49 98 52




